Nome
Progetto

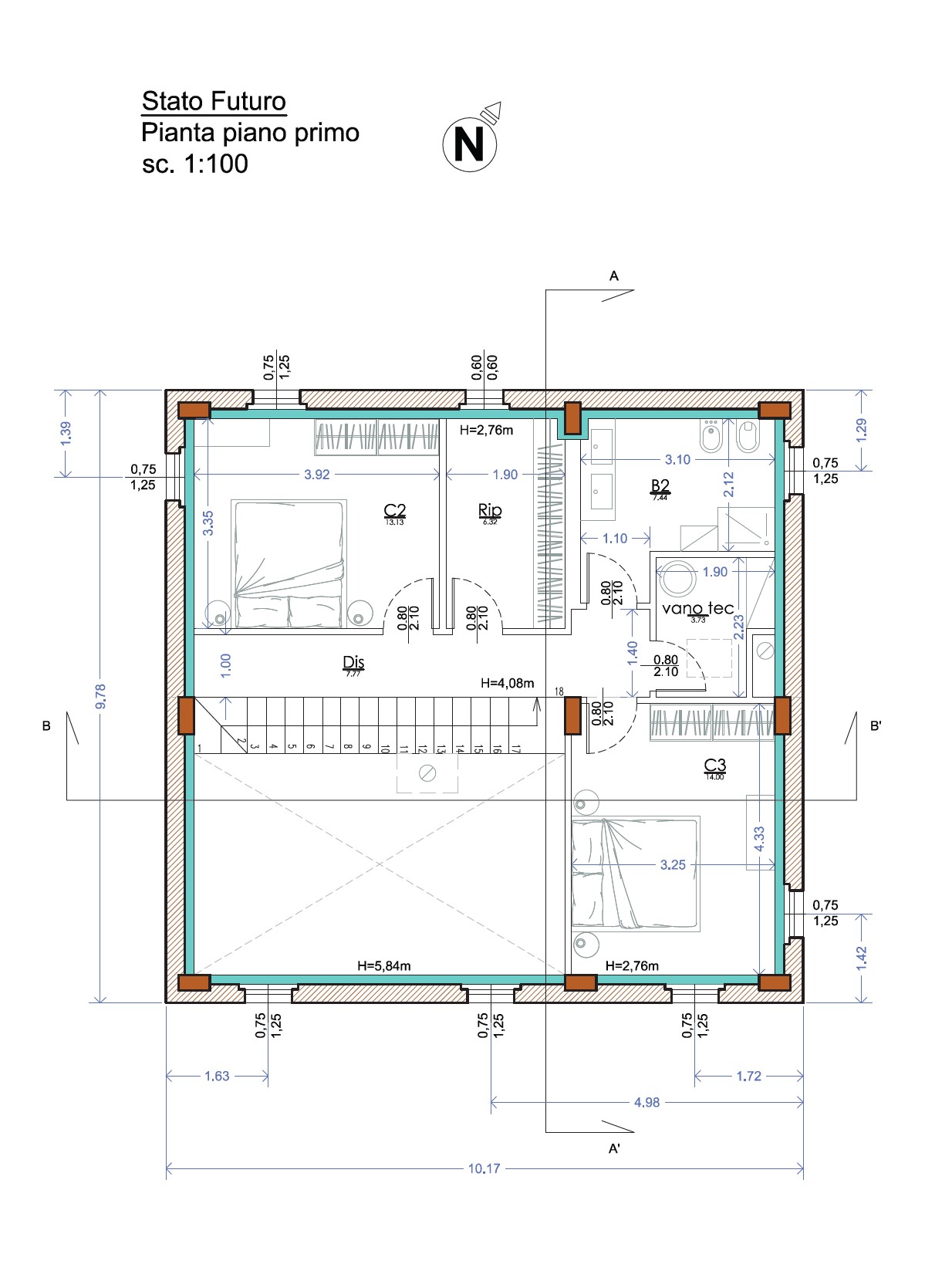
CASA PI

Descrizione

Progetto di demolizione e ricostruzione di una casa in campagna a Cupramontana. Elaborazione grafica tridimensionale


Se sei interessato contattami compilando il seguente form

Inserisci i tuoi dati e una breve descrizione. Verrai ricontattato quanto prima. Grazie

      Ho letto l'informativa privacy e acconsento alla memorizzazione dei miei dati nel vostro archivio secondo quanto stabilito dal regolamento europeo per la protezione dei dati personali n- 679/2016, GDPR.