Nome
Progetto

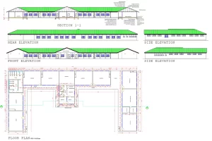
SCUOLA ELEMENTARE (ZAMBIA – AFRICA)

Descrizione

Supporto alla progettazione della scuola elementare Shalom di Kanyama (periferia di Lusaka) in Zambia, realizzata nel 2012


Se sei interessato contattami compilando il seguente form

Inserisci i tuoi dati e una breve descrizione. Verrai ricontattato quanto prima. Grazie

      Ho letto l'informativa privacy e acconsento alla memorizzazione dei miei dati nel vostro archivio secondo quanto stabilito dal regolamento europeo per la protezione dei dati personali n- 679/2016, GDPR.